Lištový zámek Roto 2CB 600 - 65/92/16/10 snížená horní kapsa
Lištový zámek Roto 2CB 600 - 65/92/16/10 snížená horní kapsa - Zámek ROTO C600 2CB 65/92/16/10 kolíky snížená horní kapsa 632mm Nelze poslat GLS a Zásilkovnou
4lockbez DPH: 3 809,92
do oblíbených
dostupnost: do 3 dní
dopravné je ZDARMA!
garance spokojenosti
sdílejte






Dveře a dveřní příslušenství Zámky Zámky lištové Zámky lištové Roto C600 2CB » Lištový zámek Roto 2CB 600 - 65/92/16/10 snížená horní kapsa
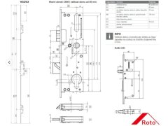
Lištový zámek ovládaný kolíky (trny)
Přední lišta (čelo) zámku 16mm
Dorn (osa kliky a vložky) 65mm = D
Velikost čtyřhranu 10mm
Pro výšku dveří 1900-2200mm
Rozteč 92mm = E
snížená horní kapsa 632mm
- Zadlabací lištový zámek na vložku
- Tichá střelka, závora a 2 kolíky
- Střelka, závora i kolíky ovládané klíčem
- Pravolevý - možnost snadného otočení střelky v zabudovaném stavu
- Ocelové kolíky - výsuv 20 mm
Upřesnění parametrů pro Lištový zámek Roto 2CB 600 - 65/92/16/10 snížená horní kapsa
Výrobce: Roto
Šíře lišty: 16 mm
Dorn: 65 mm
Rozteč: 92 mm
Velikost čtyřhranu: 10 mm
Systém zamykání: kolíky
Horní kapsa: snížená
Lištový zámek Roto 2CB 600 - 65/92/16/10 snížená horní kapsa
Také Vás může u Lištový zámek Roto 2CB 600 - 65/92/16/10 snížená horní kapsa zajímat:
zpět na další C600 2CB
- Výprodej
- Dveře a dveřní příslušenství
- Zabezpečení stávajících dveří
- Bezpečnostní dveře
- Dveřní kování, dveřní příslušenství
- Cylindrické vložky
- Chytré zámky
- Zámky
- Zámky rustikální
- Zadlabací zámky
- Zámky povrchové
- Přídavné zámky
- Zámky lištové
- Zámky na posuvné dveře
- Příslušenství zámky, plechy
- Zámky do bezpečnostních dveří
- Vícebodové zámky
- Atypické zadlabací zámky speciální provedení
- Atypické zavírání
- Nábytkové zámky
- zámky na sklo
- Trezorové zámky
- Dveřní závory celoplošné
- Zástrčky, pákové uzávěry, zástrče, dveřní přídrže
- Dveřní panty, Dveřní závěsy
- Samozamykací zámky
- Dveřní kukátka
- Dveřní zavírače
- Panikové systémy
- Systémy generálního klíče
- Okna
- Železářství
- Stavebniny
- Moto a cyklo
- Dílna - Outdoor
- Trezory, sejfy, pokladničky
- Elektro
- Nože
- Skladová technika
- Gravírování, smalt, piktogramy
